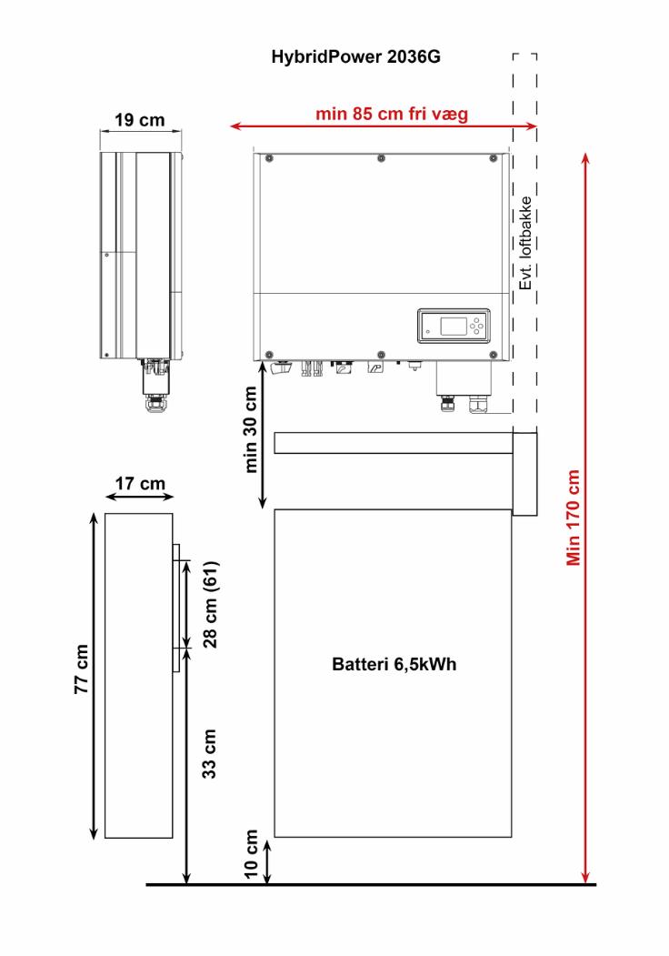
HybridPower inverteren skal være i umiddelbar nærhed af batterilageret, da strømmene mellem dem er ganske høje. Normalt indenfor 1,5 meter som vist på billedet. Afstanden fra inverter til henholdsvis solceller og eltavle har mindre betydning.
Batterilageret vejer også en del, så du skal overveje placeringen af hele anlægget.
Regn og slud – udendørs placering?
HybridPower inverteren hænger godt indendørs. Men den må også placeres udenfor i et frostfrit rum der er beskyttet mod regn, slud og fygesne (fx i skur med fast og tørt gulv).
Temperatur:
Batteriet skal stå frost- og kondensfrit miljø. Temperaturområdet er 5 til 35° celsius. Opladningen reduceres trinsvist når temperaturen kommer under 15* og slår helt under ca. 5 grader.
I et koldt rum kan man fx lave en lille isoleret kasse med et varmelegeme i (Frostvagt) til selve batterierne. Inverter kan godt arbejde i frost.
Støj og ventilation:
Inverteren og batteri har ikke blæsere og støjer derfor ikke meget. Dog kommer der periodisk en hyletone fra inverter, som kan være generende, hvis den står for tæt på opholdsrum.
Placeringsforslag:
- Et tæt og opvarmet skur eller garage.
- I tør kælder.
- Et stort bryggers eller andet disponibelt rum indenfor.
Der er lidt forskel på placering af vores modeller, som du kan studere nedenfor:
HybridPower 2036G
HybridPower 2036G installation

HybridPower 2036G Produktmål

HybridPower 2051G og 2100G
HybridPower 2051G
ét batteritårn

HybridPower 2051G
Dobbelt batteritårn

HybridPower 2051G og 2100G
indendørs og frostfrit (+5*)
